Vendesi Santa Croce Camerina

Ampio appartamento a Santa Croce Camerina

Rif: 2318
in Vendita

100.000€

Descrizione

Nel cuore di Santa Croce Camerina, a pochi passi dai principali servizi di zona, negozi, farmacia e bar, pronto Casa Group propone in vendita un ampio appartamento di circa 177 mq, al primo piano di una palazzina di sole due unità abitative.
L'immobile, si presenta in stato originale, ma ben tenuto ed offre spazi generosi e un'ottima disposizione interna.
L'ingresso è ampio e arredabile, ideale anche come studio o zona relax. La cucina è abitabile, il salone è spazioso e luminoso e sono presenti tre camere da letto matrimoniali. Completano l'immobile due bagni e due comodi ripostigli.
L'appartamento dispone inoltre di ben quattro balconi, che offrono una vista piacevole e donano molta luminosità.
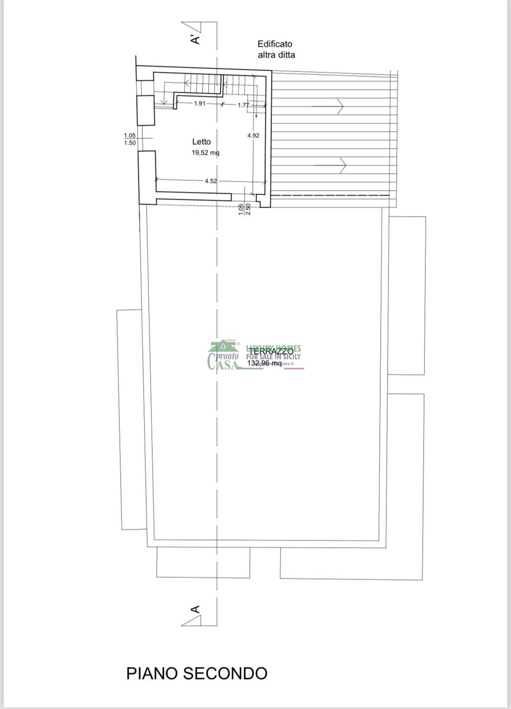
Una scala interna conduce al secondo piano, dove è presente una mansarda che consente l'accesso a un grande terrazzo di 130 mq con vista panoramica verso il mare, un vero angolo di tranquillità.
A completare la proprietà un'autorimessa di circa 18 mq.
L'immobile, già abitabile, offre un grande potenziale di personalizzazione e può essere una valida opportunità anche come investimento.
Non perdere questa opportunità di vivere in centro a Santa Croce Camerina, in un immobile che unisce comodità e grandi spazi.
Contattaci per maggiori informazioni allo 0932 239865 e per fissare un appuntamento oppure visita il nostro sito ufficiale con virtual tour disponibile.

Scheda tecnica

  • Area (mq): 177
  • Locali: 6
  • Bagni: 2
  • Camere: 3
  • Cucina: Cucina abitabile
  • Terrazzo: Si
  • Balcone: Si
  • Box auto: Singolo
  • Giardino condominiale: No
  • Giardino privato: No
  • Riscaldamento: Autonomo
  • Tipo Riscaldamento: Pompa di calore
  • Piano:
  • Numero di piani: 2
  • Stato: Libero
  • Stato manutenzione: Buono
  • Anno di costruzione: 1970
  • Ascensore: No
  • Classe Energetica:
    G
    A
    B
    C
    D
    E
    F
    G

Agenzia

  • Marina di Ragusa

    Pronto Casa Ag.7 Marina di Ragusa

    Indirizzo:Via del Mare, 3 Telefono:0932239865 Email:marinadiragusa@pronto-casa.it
  • Mappa

    Aree Pronto Casa

    Un team di professionisti al tuo fianco

    Area Tecnica

    Area Tecnica

    Dal disbrigo delle pratiche catastali alle certificazioni energetiche, fino alla progettazione e ristrutturazione: il nostro ufficio tecnico MG Project è il partner ideale per chi desidera vendere o acquistare senza complicazioni.

    Scopri di più
    Area Mutui

    Area Mutui

    Grazie alla partnership con Integra Finance, ti affianchiamo nella scelta del mutuo più vantaggioso. Il nostro team dedicato ti segue passo dopo passo, dalla simulazione della rata fino alla firma del contratto.

    Scopri di più
    Area Immobili

    Area Immobili

    I nostri consulenti immobiliari conoscono a fondo il territorio e mettono al centro le tue esigenze. Dalla valutazione dell’immobile alla trattativa finale, ti garantiamo un supporto personalizzato e professionale.

    Scopri di più

    Consigliati

    Immobili Consigliati

    Richiedi dettagli