Vendesi Ragusa

Appartamento zona San Luigi

Rif: 9570
in Vendita

99.000€

Descrizione

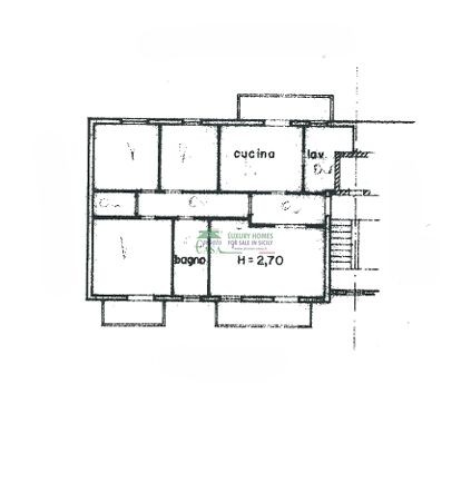
La Pronto Casa vende in Via G. Nicastro, luminoso appartamento al piano quarto ascensorato di mq 110 circa. L' immobile è composto da ingresso, soggiorno, cucina abitabile con annessa lavanderia/doppio servizio, camera da letto matrimoniale, due camerette, ripostiglio e servizio principale. Riscaldamento autonomo a gasolio ed acqua condominiale. I balconi panoramici su doppia esposizione conferiscono luminosità all' immobile. Di pertinenza garage di mq 20 circa. Per maggiori informazioni contattare lo 0932/257603 o visitare il nostro sito

Scheda tecnica

  • Quartiere: Residenziale
  • Area (mq): 110
  • Locali: 5
  • Bagni: 2
  • Camere: 3
  • Cucina: Cucina abitabile
  • Terrazzo: No
  • Balcone: Si
  • Box auto: Singolo
  • Giardino condominiale: Si
  • Giardino privato: No
  • Riscaldamento: Autonomo
  • Tipo Riscaldamento: Gasolio
  • Piano:
  • Numero di piani: 6
  • Stato: Libero
  • Stato manutenzione: Discreto
  • Anno di costruzione: 1985
  • Ascensore: Si

Agenzia

  • Ragusa

    Pronto Casa Ragusa

    Indirizzo:Via del Faggio, 3 Telefono:0932257603 Email:info@pronto-casa.it
  • Mappa

    Aree Pronto Casa

    Un team di professionisti al tuo fianco

    Area Tecnica

    Area Tecnica

    Dal disbrigo delle pratiche catastali alle certificazioni energetiche, fino alla progettazione e ristrutturazione: il nostro ufficio tecnico MG Project è il partner ideale per chi desidera vendere o acquistare senza complicazioni.

    Scopri di più
    Area Mutui

    Area Mutui

    Grazie alla partnership con Integra Finance, ti affianchiamo nella scelta del mutuo più vantaggioso. Il nostro team dedicato ti segue passo dopo passo, dalla simulazione della rata fino alla firma del contratto.

    Scopri di più
    Area Immobili

    Area Immobili

    I nostri consulenti immobiliari conoscono a fondo il territorio e mettono al centro le tue esigenze. Dalla valutazione dell’immobile alla trattativa finale, ti garantiamo un supporto personalizzato e professionale.

    Scopri di più

    Consigliati

    Immobili Consigliati

    Richiedi dettagli