Vendesi Marina di Ragusa

Rif. 2315- Villa esclusiva con piscina a Marina di Ragusa

Rif: 2315
in Vendita

649.000€

Descrizione

All' ingresso di Marina di Ragusa, a circa 750 metri dal paese, in contrada Cerasella, Pronto Casa Group propone in vendita una villa di lusso con piscina.
La proprietà è composta da due immobili sviluppati su due livelli, ha circa 750 mq di giardino con prato inglese che la circonda da ogni lato e offre una bellissima vista sulla campagna circostante ed il mare.

CARATTERISTICHE PRINCIPALI

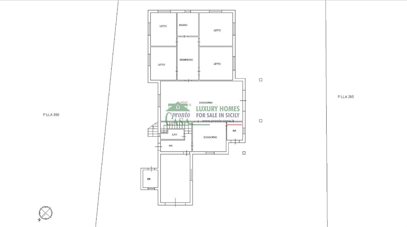
Al piano terra, che occupa una superficie di circa 259 mq, troviamo:
  • ampio salone con camino e grandi finestre in legno
  • cucina abitabile
  • quattro camere da letto matrimoniali
  • due bagni.

Al piano primo è stata realizzata una graziosa mansarda abitabile di circa 97 mq, recentemente rifinita, è composta da:
  • luminoso salone con cucina a vista
  • due camere da letto matrimoniali con terrazzini vista mare
  • bagno.

DOTAZIONI E PERTINENZE

La casa è climatizzata e presenta ottime finiture.
Completano la proprietà un comodo garage di circa 30 mq ed una cantina di 50 mq.
Contattaci subito allo 0932 239865 per prenotare una visita dal vivo, oppure visita il nostro sito internet ufficiale con virtual tour disponibile.

Scheda tecnica

  • Quartiere: Campagna Marina di Ragusa
  • Area (mq): 356
  • Locali: 8
  • Bagni: 3
  • Camere: 6
  • Cucina: Cucina abitabile
  • Terrazzo: Si
  • Balcone: Si
  • Box auto: Singolo
  • Giardino condominiale: No
  • Giardino privato: Si
  • Riscaldamento: Autonomo
  • Tipo Riscaldamento: Pompa di calore
  • Piano: Intero edificio
  • Numero di piani: 2
  • Stato: Libero
  • Stato manutenzione: Ottimo
  • Ascensore: No
  • Classe Energetica:
    F
    A
    B
    C
    D
    E
    F
    G
  • Indice di Prestazione Energetica (IPE): 251,2 KWh/m²a

Agenzia

  • Marina di Ragusa

    Pronto Casa Ag.7 Marina di Ragusa

    Indirizzo:Via del Mare, 3 Telefono:0932239865 Email:marinadiragusa@pronto-casa.it
  • Mappa

    Aree Pronto Casa

    Un team di professionisti al tuo fianco

    Area Tecnica

    Area Tecnica

    Dal disbrigo delle pratiche catastali alle certificazioni energetiche, fino alla progettazione e ristrutturazione: il nostro ufficio tecnico MG Project è il partner ideale per chi desidera vendere o acquistare senza complicazioni.

    Scopri di più
    Area Mutui

    Area Mutui

    Grazie alla partnership con Integra Finance, ti affianchiamo nella scelta del mutuo più vantaggioso. Il nostro team dedicato ti segue passo dopo passo, dalla simulazione della rata fino alla firma del contratto.

    Scopri di più
    Area Immobili

    Area Immobili

    I nostri consulenti immobiliari conoscono a fondo il territorio e mettono al centro le tue esigenze. Dalla valutazione dell'immobile alla trattativa finale, ti garantiamo un supporto personalizzato e professionale.

    Scopri di più

    Consigliati

    Immobili Consigliati

    Richiedi dettagli