Vendesi Marina di Ragusa

Rif. 2424 - Villetta con giardino a Marina di Ragusa - Cerasella

Rif: 2424
in Vendita

250.000€

Descrizione

Pronto Casa Group propone in vendita una splendida villetta indipendente situata nella tranquilla e ricercata zona Cerasella, a Marina di Ragusa.
L’immobile, inserito in un contesto residenziale abitato tutto l’anno, rappresenta la soluzione ideale per chi desidera vivere in un’abitazione immersa nel verde, a pochi minuti dal mare e con ampi spazi interni ed esterni.

CARATTERISTICHE PRINCIPALI


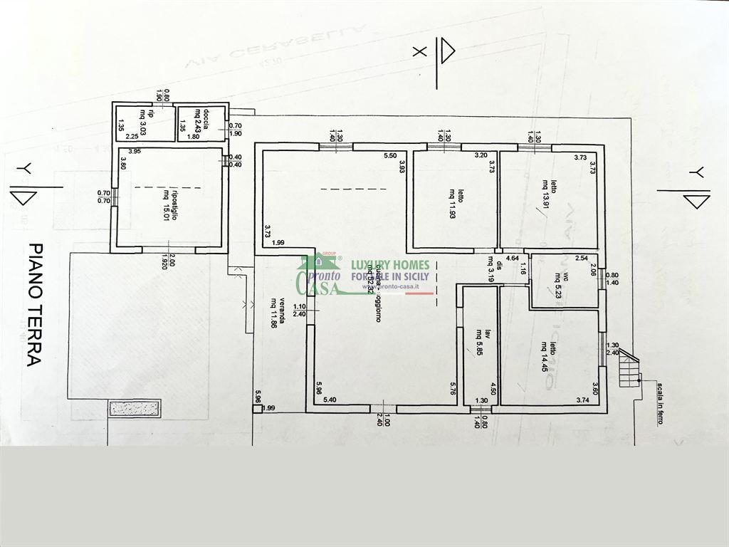
La villetta si sviluppa interamente al piano terra e dispone di una superficie di circa 127 mq, così distribuiti:
– Ampia e luminosa zona living, ideale per accogliere famiglia e ospiti;
– Cucina abitabile separata, comoda e funzionale per l’uso quotidiano;
– Tre camere da letto matrimoniali;
– Servizio principale, completo;
– Lavanderia dedicata, pratica e ben organizzata.
Al piano superiore, accessibile da scala esterna, è presente un vano sottotetto perfetto come locale di sgombero o spazio di deposito aggiuntivo.

SPAZI ESTERNI


La proprietà sorge su un lotto di circa 1300 mq, completamente circondato da aree verdi curate e impreziosite da alberi di carrubo e ficus benjamin.
Gli spazi aperti rappresentano uno dei veri punti di forza dell’immobile, perfetti per vivere all’aria aperta, organizzare pranzi in famiglia o godere della massima privacy.
Di pertinenza anche un locale magazzino di circa 20 mq, utile come ripostiglio, laboratorio o garage per moto e piccoli mezzi.

DOTAZIONI E CONDIZIONI


– Struttura indipendente su quattro lati;
– Ottimo potenziale di personalizzazione;
– Immobile già abitabile;
– Contesto residenziale stabile e ben frequentato.

POSIZIONE


La villetta si trova in un villaggetto residenziale alle porte di Marina di Ragusa, zona tranquilla e abitata tutto l’anno, a soli 2 km dalle spiagge e dai principali servizi della località balneare.
Per maggiori informazioni sull’immobile o per prenotare una visita, contatta la filiale Pronto Casa Group – Agenzia 7 Marina di Ragusa al numero 0932 239865.
Visita anche il nostro sito www.pronto
  • casa.it
per scoprire tutti gli immobili disponibili in zona.
Se vuoi, posso anche creare una versione più breve, una più elegante oppure una ottimizzata per portali come Idealista, Casa.it o Immobiliare.it.

Scheda tecnica

  • Quartiere: Campagna Marina di Ragusa
  • Area (mq): 127
  • Locali: 4
  • Bagni: 1
  • Camere: 3
  • Cucina: Cucina abitabile
  • Terrazzo: Si
  • Balcone: No
  • Box auto: Singolo
  • Giardino condominiale: No
  • Giardino privato: Si
  • Riscaldamento: Nessuno
  • Piano: Terra
  • Numero di piani: 2
  • Stato: Libero
  • Stato manutenzione: Buono
  • Anno di costruzione: 1985
  • Ascensore: No
  • Classe Energetica:
    G
    A
    B
    C
    D
    E
    F
    G

Agenzia

  • Marina di Ragusa

    Pronto Casa Ag.7 Marina di Ragusa

    Indirizzo:Via del Mare, 3 Telefono:0932239865 Email:marinadiragusa@pronto-casa.it
  • Mappa

    Aree Pronto Casa

    Un team di professionisti al tuo fianco

    Area Tecnica

    Area Tecnica

    Dal disbrigo delle pratiche catastali alle certificazioni energetiche, fino alla progettazione e ristrutturazione: il nostro ufficio tecnico MG Project è il partner ideale per chi desidera vendere o acquistare senza complicazioni.

    Scopri di più
    Area Mutui

    Area Mutui

    Grazie alla partnership con Integra Finance, ti affianchiamo nella scelta del mutuo più vantaggioso. Il nostro team dedicato ti segue passo dopo passo, dalla simulazione della rata fino alla firma del contratto.

    Scopri di più
    Area Immobili

    Area Immobili

    I nostri consulenti immobiliari conoscono a fondo il territorio e mettono al centro le tue esigenze. Dalla valutazione dell’immobile alla trattativa finale, ti garantiamo un supporto personalizzato e professionale.

    Scopri di più

    Consigliati

    Immobili Consigliati

    Richiedi dettagli