Vendesi Ragusa

Rif. 8592 - Commerciale per ristorazione - Ragusa Ibla

Rif: 9766
in Vendita

160.000€

Descrizione

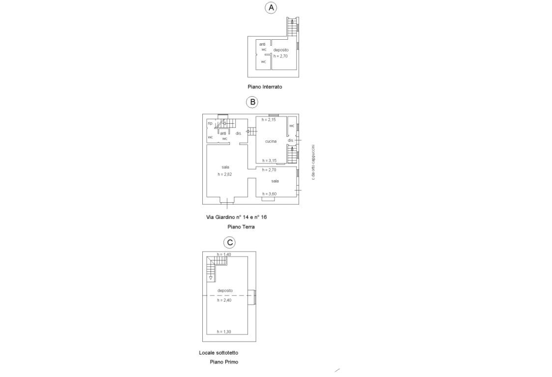
La Pronto Casa Group propone in vendita nella suggestiva Ragusa Ibla, a pochi passi dai giardini Iblei, immobile commerciale di mq 168 circa.
Il cespite, dotato di giardino interno, si presta ad attività di ristorazione ed è sito in una zona ad alta densità turistica.

CARATTERISTICHE PRINCIPALI

L'immobile si sviluppa interamente al piano terra ed è composto da:
  • tre sale
  • tre servizi
  • cucina abitabile.

Completa la struttura il cortile interno di mq 60 circa, di esclusiva pertinenza, all'interno del quale è possibile organizzare lo spazio riservandolo a vari tavoli.
Per ulteriori informazioni contattare lo 0932257603 o visitare il nostro sito.

Scheda tecnica

  • Quartiere: Ragusa Ibla
  • Area (mq): 168
  • Locali: 3
  • Bagni: 3
  • Camere: 3
  • Cucina: Cucina abitabile
  • Terrazzo: No
  • Balcone: No
  • Box auto: Nessuno
  • Giardino condominiale: No
  • Giardino privato: Si
  • Riscaldamento: Autonomo
  • Tipo Riscaldamento: Elettrico
  • Piano: Terra
  • Stato: Libero
  • Stato manutenzione: Ottimo
  • Ascensore: No
  • Classe Energetica:
    B
    A
    B
    C
    D
    E
    F
    G
  • Indice di Prestazione Energetica (IPE): 7,63 KWh/m²a

Agenzia

  • Ragusa

    Pronto Casa Ragusa

    Indirizzo:Via del Faggio, 3 Telefono:0932257603 Email:info@pronto-casa.it
  • Mappa

    Aree Pronto Casa

    Un team di professionisti al tuo fianco

    Area Tecnica

    Area Tecnica

    Dal disbrigo delle pratiche catastali alle certificazioni energetiche, fino alla progettazione e ristrutturazione: il nostro ufficio tecnico MG Project è il partner ideale per chi desidera vendere o acquistare senza complicazioni.

    Scopri di più
    Area Mutui

    Area Mutui

    Grazie alla partnership con Integra Finance, ti affianchiamo nella scelta del mutuo più vantaggioso. Il nostro team dedicato ti segue passo dopo passo, dalla simulazione della rata fino alla firma del contratto.

    Scopri di più
    Area Immobili

    Area Immobili

    I nostri consulenti immobiliari conoscono a fondo il territorio e mettono al centro le tue esigenze. Dalla valutazione dell'immobile alla trattativa finale, ti garantiamo un supporto personalizzato e professionale.

    Scopri di più

    Consigliati

    Immobili Consigliati

    Richiedi dettagli