Vendesi Ragusa

Rif. 9549 - Ville di nuova costruzione

Rif: 9549
in Vendita

260.000€

Descrizione

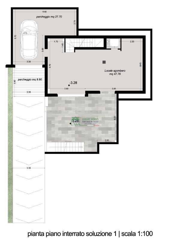
La Pronto Casa Group Vende, in una delle zone residenziali più ambite di Ragusa, Ville di nuova costruzione su tre livelli per complessivi 180 mq circa commerciali, con ulteriori 45 mq circa al piano seminterrato.
Le ville, inserite in un complesso residenziale di unità indipendenti, rappresentano un’ottima opportunità per chi cerca una soluzione abitativa moderna, personalizzabile ed immersa nel verde.
La vendita è possibile sia chiavi in mano che allo stato rustico avanzato consentendo di scegliere finiture e dettagli secondo il proprio stile e le proprie esigenze. Il prezzo varia in base alle caratteristiche di ciascuna unità.
DISPOSIZIONE INTERNA:

  • Piano terra con ingresso su zona living con cucina a vista e ampia veranda coperta, con grandi vetrate sul giardino pertinenziale
  • Piano primo: due o tre camere da letto e un servizio
  • Piano seminterrato: ambiente multiuso, veranda e garage

CARATTERISTICHE PRINCIPALI:
  • Giardino privato
  • Grandi vetrate
  • Verande coperte
  • Garage
  • Predisposizione montacarichi
  • Possibilità di personalizzazione
  • Stato rustico avanzato

Il prezzo pubblicato si riferisce allo stato rustico avanzato.
Per maggiori informazioni sull’immobile e/o per una consulenza sulla fattibilità del mutuo per l’acquisto in stato grezzo con successivo completamento, contattare l’Agenzia 1 di Ragusa al 0932 257603 oppure visitare il nostro sito.

Scheda tecnica

  • Quartiere: Residenziale
  • Area (mq): 180
  • Locali: 6
  • Bagni: 2
  • Camere: 3
  • Cucina: Cucina a vista
  • Terrazzo: Si
  • Balcone: Si
  • Box auto: Singolo
  • Giardino condominiale: No
  • Giardino privato: Si
  • Riscaldamento: Autonomo
  • Piano: Terra
  • Numero di piani: 3
  • Stato: Nuovo
  • Stato manutenzione: Nuovo
  • Anno di costruzione: 2024
  • Ascensore: Si

Video

Agenzia

  • Ragusa

    Pronto Casa Ragusa

    Indirizzo:Via del Faggio, 3 Telefono:0932257603 Email:info@pronto-casa.it
  • Mappa

    Aree Pronto Casa

    Un team di professionisti al tuo fianco

    Area Tecnica

    Area Tecnica

    Dal disbrigo delle pratiche catastali alle certificazioni energetiche, fino alla progettazione e ristrutturazione: il nostro ufficio tecnico MG Project è il partner ideale per chi desidera vendere o acquistare senza complicazioni.

    Scopri di più
    Area Mutui

    Area Mutui

    Grazie alla partnership con Integra Finance, ti affianchiamo nella scelta del mutuo più vantaggioso. Il nostro team dedicato ti segue passo dopo passo, dalla simulazione della rata fino alla firma del contratto.

    Scopri di più
    Area Immobili

    Area Immobili

    I nostri consulenti immobiliari conoscono a fondo il territorio e mettono al centro le tue esigenze. Dalla valutazione dell'immobile alla trattativa finale, ti garantiamo un supporto personalizzato e professionale.

    Scopri di più

    Consigliati

    Immobili Consigliati

    Richiedi dettagli