Vendesi Ragusa

Rif. 9609 - Casa indipendente zona Piazza S. Giovanni, Ragusa

Rif: 9609
in Vendita

45.000€

Descrizione

La Pronto Casa Group propone in vendita, nei pressi di Piazza San Giovanni a Ragusa, casa indipendente.
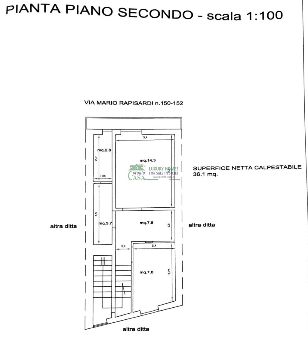
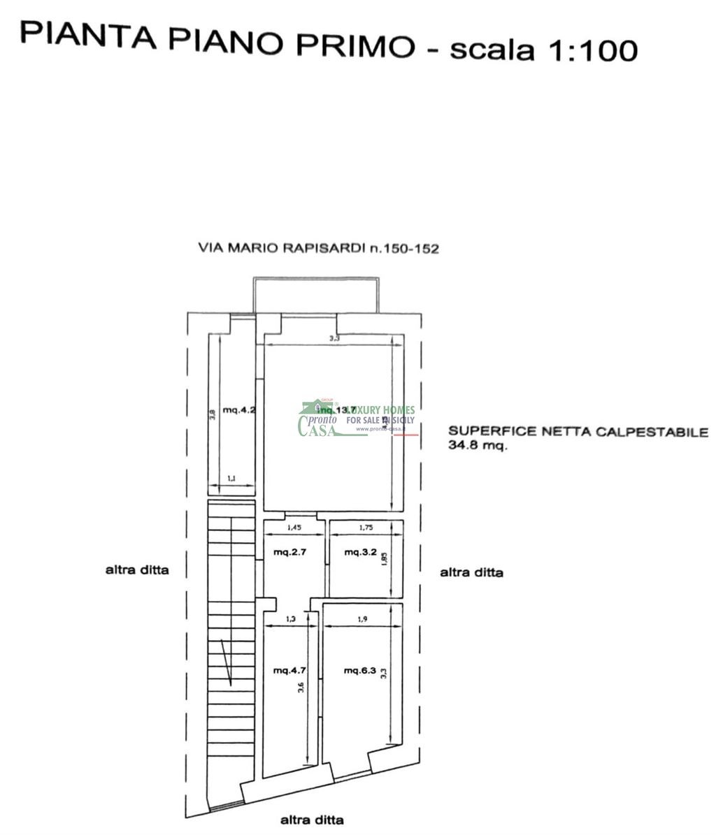
Il cespite, in discreto stato di conservazione, si sviluppa su quattro livelli per una superficie complessiva di circa 120 mq. Pur mantenendo le caratteristiche originarie, gli spazi si prestano a diverse soluzioni abitative, turistiche o di investimento, grazie alla presenza di più vani ed alla possibilità di rendere indipendenti i diversi piani.
CARATTERISTICHE PRINCIPALI:

  • piano terra con ingresso indipendente, composto da due vani con servizio e scala interna in pece che conduce al piano ammezzato;
  • piano ammezzato: composto da due vani e ripostiglio;
  • piano primo composto da due vani, bagno, ripostiglio e cucinino, con accesso tramite una scala indipendente condivisa solo con il secondo piano;
  • piano secondo composto da tre vani, bagno e cucinino.
SPAZI ESTERNI:
La proprietà è arricchita dalla presenza di due balconi e altri tre alla romana.
Per maggiori informazioni sull'immobile o per fissare un appuntamento contatta la filiale Pronto Casa Group
  • Point 3 Ragusa, al numero 0932/1885279.
Visita il nostro sito web per scoprire tutti gli annunci simili disponibili in città.

Scheda tecnica

  • Quartiere: Centro storico
  • Area (mq): 120
  • Locali: 10
  • Bagni: 3
  • Camere: 2
  • Cucina: Angolo cottura
  • Terrazzo: No
  • Balcone: Si
  • Box auto: Nessuno
  • Giardino condominiale: No
  • Giardino privato: No
  • Riscaldamento: Autonomo
  • Tipo Riscaldamento: Elettrico
  • Piano: Intero edificio
  • Numero di piani: 3
  • Stato: Libero
  • Stato manutenzione: Da ristrutturare
  • Ascensore: No
  • Classe Energetica:
    G
    A
    B
    C
    D
    E
    F
    G

Agenzia

  • Ragusa

    Pronto Casa Ragusa

    Indirizzo:Via del Faggio, 3 Telefono:0932257603 Email:info@pronto-casa.it
  • Mappa

    Aree Pronto Casa

    Un team di professionisti al tuo fianco

    Area Tecnica

    Area Tecnica

    Dal disbrigo delle pratiche catastali alle certificazioni energetiche, fino alla progettazione e ristrutturazione: il nostro ufficio tecnico MG Project è il partner ideale per chi desidera vendere o acquistare senza complicazioni.

    Scopri di più
    Area Mutui

    Area Mutui

    Grazie alla partnership con Integra Finance, ti affianchiamo nella scelta del mutuo più vantaggioso. Il nostro team dedicato ti segue passo dopo passo, dalla simulazione della rata fino alla firma del contratto.

    Scopri di più
    Area Immobili

    Area Immobili

    I nostri consulenti immobiliari conoscono a fondo il territorio e mettono al centro le tue esigenze. Dalla valutazione dell’immobile alla trattativa finale, ti garantiamo un supporto personalizzato e professionale.

    Scopri di più

    Consigliati

    Immobili Consigliati

    Richiedi dettagli