Vendesi Ragusa

Rif. 9747 - Appartamento in villa di nuova costruzione - 'Pianetti'

Rif: 9747
in Vendita

270.000€

Descrizione

La Pronto Casa Group propone in vendita appartamenti in villa di nuova costruzione – Un'oasi nel cuore residenziale della zona Pianetti a Ragusa
In una delle zone più ambite e residenziali di Ragusa, proponiamo appartamenti in villa bifamiliare di nuova costruzione con ingresso indipendente.
Gli immobili, attualmente in fase di realizzazione, saranno consegnati entro 24 mesi e venduti chiavi in mano, con opere di urbanizzazione incluse e già realizzare ed allaccio al Comune per tutte le utenze (acqua, luce, gas e fognatura).
L’IVA va aggiunta al prezzo e varia in base all’acquisto come prima o seconda casa.
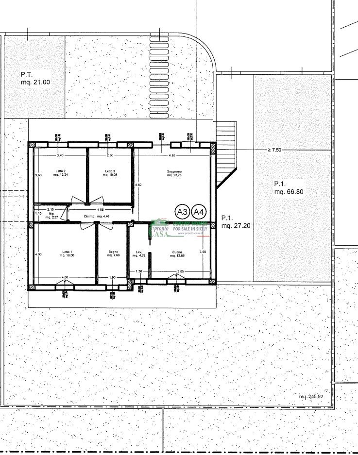
Disponibili due soluzioni con ingresso indipendente (piano terra o primo piano) da 120 mq lordi (95 mq netti)
DISTRIBUZIONE INTERNA:

  • Piano terra con giardino privato di circa 250 mq e garage di circa 21 mq
o
  • Primo piano con giardino di circa 65 mq, veranda coperta di circa 20 mq, sottotetto pertinenziale di circa 70 mq e garage di circa 21 mq

Gli interni si compongono in soggiorno, cucina abitabile con lavanderia, camera matrimoniale, due camerette e bagno principale, con ambienti luminosi e funzionali.
DOTAZIONI:
  • Classe energetica A4
  • Infissi in PVC a taglio termico e persiane in alluminio bianco
  • Ringhiere in alluminio
  • Impianto di riscaldamento con caldaia a gas metano a condensazione, pompe di calore e radianti in alluminio con cronotermostato in ogni ambiente
  • Impianto solare termico e fotovoltaico da 1.5 kW
  • Cappotto termico, isolamento acustico

Soluzioni ideali per chi cerca una casa moderna, efficiente e indipendente con spazi verdi e garage privato laterale alla struttura, nel cuore della zona Pianetti di Ragusa.
Gli immobili, attualmente allo stato di progetto, saranno consegnati entro 24 mesi e realizzati secondo i più alti standard di qualità costruttiva, comfort e sostenibilità energetica.
Ogni abitazione dispone di ingresso indipendente e offre spazi interni ampi e funzionali, pensati per garantire massima privacy e qualità abitativa.
LE FOTO RAPPRESENTANO FEDELMENTE COSTRUZIONI SIMILARI GIA' REALIZZATE E VENDUTE.
📞 Pronto Casa Group – 0932 257603
🌐 Visita il nostro sito web per ulteriori informazioni.

Scheda tecnica

  • Quartiere: Residenziale
  • Area (mq): 120
  • Locali: 5
  • Bagni: 2
  • Camere: 3
  • Cucina: Cucina abitabile
  • Terrazzo: Si
  • Balcone: Si
  • Box auto: Singolo
  • Giardino condominiale: No
  • Giardino privato: Si
  • Riscaldamento: Autonomo
  • Tipo Riscaldamento: Gas metano
  • Piano: Terra
  • Stato: In progetto
  • Stato manutenzione: Nuovo
  • Ascensore: No
  • Classe Energetica:
    A4
    A
    B
    C
    D
    E
    F
    G

Agenzia

  • Ragusa

    Pronto Casa Ragusa

    Indirizzo:Via del Faggio, 3 Telefono:0932257603 Email:info@pronto-casa.it
  • Mappa

    Aree Pronto Casa

    Un team di professionisti al tuo fianco

    Area Tecnica

    Area Tecnica

    Dal disbrigo delle pratiche catastali alle certificazioni energetiche, fino alla progettazione e ristrutturazione: il nostro ufficio tecnico MG Project è il partner ideale per chi desidera vendere o acquistare senza complicazioni.

    Scopri di più
    Area Mutui

    Area Mutui

    Grazie alla partnership con Integra Finance, ti affianchiamo nella scelta del mutuo più vantaggioso. Il nostro team dedicato ti segue passo dopo passo, dalla simulazione della rata fino alla firma del contratto.

    Scopri di più
    Area Immobili

    Area Immobili

    I nostri consulenti immobiliari conoscono a fondo il territorio e mettono al centro le tue esigenze. Dalla valutazione dell’immobile alla trattativa finale, ti garantiamo un supporto personalizzato e professionale.

    Scopri di più

    Consigliati

    Immobili Consigliati

    Richiedi dettagli