Vendesi Ragusa

Rif. 9826 - Palazzetto ''primi 900''

Rif: 9826
in Vendita

50.000€

Descrizione

Pronto Casa Group propone in vendita nel pieno centro storico di Ragusa, con affaccio diretto su Corso Italia e a pochi passi dalla maestosa Cattedrale di San Giovanni Battista, un affascinante palazzetto dei primi ’900 di circa 480 mq complessivi, ideale per operazioni di valorizzazione immobiliare.
CARATTERISTICHE PRINCIPALI:
L’immobile si sviluppa su tre livelli:

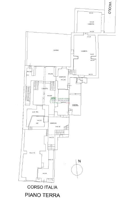
  • Piano terra (200 mq circa): unità abitativa con bilocale indipendente, vano ad uso garage, terrazzino e accesso a giardino privato di circa 100 mq.
  • Primo piano (200 mq circa): sette vani oltre servizi, con ampia metratura facilmente rimodulabile.
  • Piano mansardato: tre vani oltre servizi e ampia terrazza panoramica.

DOTAZIONI E PERTINENZE:
  • Ampia metratura già predisposta per frazionamento in più unità abitative
  • Ideale per realizzazione di struttura ricettiva (B&B, hotel, casa vacanze)
  • Posizione centrale ad alta attrattività turistica e residenziale
  • Presenza di spazi esterni (giardino e terrazze), elemento distintivo nel centro storico
  • vano garage, valore aggiunto raro in zona

La combinazione tra location, generose dimensioni e versatilità distributiva rende questa proprietà una concreta opportunità di sviluppo con elevato potenziale di redditività, sia nel mercato delle locazioni brevi che in quello residenziale.
Per maggiori informazioni contatta la filiale Pronto Casa Agenzia 1 di Ragusa al numero 0932 257603. Visita il nostro sito web www.pronto-casa.it per scoprire tutti gli annunci disponibili in città.

Scheda tecnica

  • Quartiere: Centro storico
  • Area (mq): 480
  • Locali: 16
  • Bagni: 4
  • Camere: 10
  • Cucina: Cucina abitabile
  • Terrazzo: Si
  • Balcone: Si
  • Box auto: Singolo
  • Giardino condominiale: No
  • Giardino privato: Si
  • Riscaldamento: Autonomo
  • Tipo Riscaldamento: Gasolio
  • Piano: Intero edificio
  • Numero di piani: 3
  • Stato: Libero
  • Stato manutenzione: Da ristrutturare
  • Anno di costruzione: ante '42
  • Ascensore: No
  • Classe Energetica:
    C
    A
    B
    C
    D
    E
    F
    G

Video

Agenzia

  • Ragusa

    Pronto Casa Ragusa

    Indirizzo:Via del Faggio, 3 Telefono:0932257603 Email:info@pronto-casa.it
  • Mappa

    Aree Pronto Casa

    Un team di professionisti al tuo fianco

    Area Tecnica

    Area Tecnica

    Dal disbrigo delle pratiche catastali alle certificazioni energetiche, fino alla progettazione e ristrutturazione: il nostro ufficio tecnico MG Project è il partner ideale per chi desidera vendere o acquistare senza complicazioni.

    Scopri di più
    Area Mutui

    Area Mutui

    Grazie alla partnership con Integra Finance, ti affianchiamo nella scelta del mutuo più vantaggioso. Il nostro team dedicato ti segue passo dopo passo, dalla simulazione della rata fino alla firma del contratto.

    Scopri di più
    Area Immobili

    Area Immobili

    I nostri consulenti immobiliari conoscono a fondo il territorio e mettono al centro le tue esigenze. Dalla valutazione dell'immobile alla trattativa finale, ti garantiamo un supporto personalizzato e professionale.

    Scopri di più

    Consigliati

    Immobili Consigliati

    Richiedi dettagli