Vendesi Ragusa

Rif.9629 - Ufficio con triplo ingresso in zona 'Via Risorgimento'

Rif: 9629
in Vendita

59.000€

Descrizione

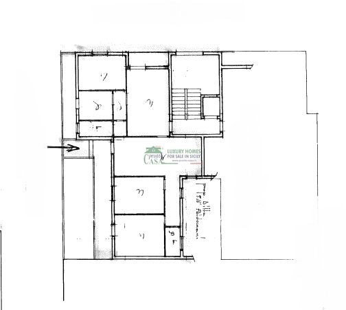
La Pronto Casa Group vende, ufficio al piano terra con triplo ingresso ed esposizione angolare, in zona 'Via Risorgimento'.
L’immobile di circa 120 mq è ideale per studi professionali, coworking o attività direzionali.
CARATTERISTICHE PRINCIPALI:

  • Superficie generosa, suddivisa in sei vani funzionali e ben distribuiti;
  • Triplo ingresso, perfetto per gestire accessi separati o creare più ambienti indipendenti;
  • Due servizi;
  • Balconi ed ottima visibilità.
PERTINENZE:
  • Riscaldamento autonomo a metano
  • Ambienti climatizzati
L'ufficio si presta a diverse soluzioni lavorative ed è perfetto per chi cerca uno spazio professionale strategicamente posizionato. Il prospetto esterno è in fase di rifacimento.
Per ulteriori info contattare l' Agenzia 1 di Ragusa al numero 0932 257603 oppure visitare il nostro sito.

Scheda tecnica

  • Quartiere: Centro città
  • Area (mq): 120
  • Locali: 6
  • Bagni: 2
  • Camere: 5
  • Cucina: Cucina abitabile
  • Terrazzo: No
  • Balcone: Si
  • Box auto: Nessuno
  • Giardino condominiale: No
  • Giardino privato: No
  • Riscaldamento: Autonomo
  • Tipo Riscaldamento: Gas metano
  • Piano: Terra
  • Numero di piani: 4
  • Stato: Libero
  • Stato manutenzione: Discreto
  • Anno di costruzione: INIZIO ANNI '80
  • Ascensore: Si
  • Classe Energetica:
    E
    A
    B
    C
    D
    E
    F
    G

Agenzia

  • Ragusa

    Pronto Casa Ragusa

    Indirizzo:Via del Faggio, 3 Telefono:0932257603 Email:info@pronto-casa.it
  • Mappa

    Aree Pronto Casa

    Un team di professionisti al tuo fianco

    Area Tecnica

    Area Tecnica

    Dal disbrigo delle pratiche catastali alle certificazioni energetiche, fino alla progettazione e ristrutturazione: il nostro ufficio tecnico MG Project è il partner ideale per chi desidera vendere o acquistare senza complicazioni.

    Scopri di più
    Area Mutui

    Area Mutui

    Grazie alla partnership con Integra Finance, ti affianchiamo nella scelta del mutuo più vantaggioso. Il nostro team dedicato ti segue passo dopo passo, dalla simulazione della rata fino alla firma del contratto.

    Scopri di più
    Area Immobili

    Area Immobili

    I nostri consulenti immobiliari conoscono a fondo il territorio e mettono al centro le tue esigenze. Dalla valutazione dell’immobile alla trattativa finale, ti garantiamo un supporto personalizzato e professionale.

    Scopri di più

    Consigliati

    Immobili Consigliati

    Richiedi dettagli