Vendesi Ragusa

Rif.9657 - Luminoso ed ampio appartamento

Rif: 9657
in Vendita

99.000€

Descrizione

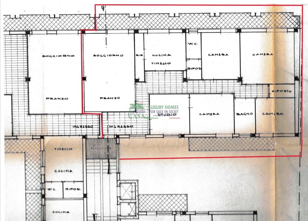
La Pronto Casa Group vende, in via Risorgimento, ampio appartamento di circa 185 mq, situato al terzo piano di un elegante complesso condominiale signorile, servito da ascensore.
L’immobile gode di una doppia esposizione est

  • ovest, che garantisce una splendida luminosità naturale durante tutto l’arco della giornata.

CARATTERISTICHE PRINCIPALI:
  • Ampio ingresso;
  • Spazioso living, ideale per momenti di relax;
  • Studio riservato, perfetto per chi necessita di uno spazio dedicato al lavoro o allo studio;
  • Cucina abitabile con annessa dispensa, funzionale e ben organizzata;
  • Lavanderia/doppio servizio;
  • Due camere da letto matrimoniali, ampie e luminose;
  • Una cameretta;
  • Servizio principale;

Quasi tutta la superficie della casa presenta un’elegante pavimentazione in marmo, che dona prestigio e raffinatezza agli ambienti.
PERTINENZE:
  • Ampi balconi su lati paralleli, ideali per vivere anche gli spazi esterni;
  • Riscaldamento autonomo a metano;
  • Doppi infissi;
  • Due posti auto assegnati all’interno del box condominiale;
  • Prospetto esterno in buono stato;
  • Contesto condominiale curato e tranquillo.

Questa soluzione rappresenta un’opportunità unica sia per chi è alla ricerca di un’abitazione spaziosa, ben distribuita e collocata in una delle zone più servite della città, sia per chi desidera frazionarlo in due trilocali distinti, ideali per uso investimento o soluzione genitori/figli.
Richiedi una consulenza gratuita sul credito
  • Pronto Casa Area Mutui by Integra Finance (OAM n°118).

Per ulteriori info contattare l’Agenzia 1 di Ragusa al numero 0932 257603 oppure visitare il nostro sito.

Scheda tecnica

  • Quartiere: Centro città
  • Area (mq): 186
  • Locali: 6
  • Bagni: 2
  • Camere: 4
  • Cucina: Cucina abitabile
  • Terrazzo: No
  • Balcone: Si
  • Box auto: Doppio
  • Giardino condominiale: No
  • Giardino privato: No
  • Riscaldamento: Autonomo
  • Tipo Riscaldamento: Gas metano
  • Piano:
  • Numero di piani: 5
  • Stato: Libero
  • Stato manutenzione: Buono
  • Anno di costruzione: '70
  • Ascensore: Si
  • Classe Energetica:
    E
    A
    B
    C
    D
    E
    F
    G

Video

Agenzia

  • Ragusa

    Pronto Casa Ragusa

    Indirizzo:Via del Faggio, 3 Telefono:0932257603 Email:info@pronto-casa.it
  • Mappa

    Aree Pronto Casa

    Un team di professionisti al tuo fianco

    Area Tecnica

    Area Tecnica

    Dal disbrigo delle pratiche catastali alle certificazioni energetiche, fino alla progettazione e ristrutturazione: il nostro ufficio tecnico MG Project è il partner ideale per chi desidera vendere o acquistare senza complicazioni.

    Scopri di più
    Area Mutui

    Area Mutui

    Grazie alla partnership con Integra Finance, ti affianchiamo nella scelta del mutuo più vantaggioso. Il nostro team dedicato ti segue passo dopo passo, dalla simulazione della rata fino alla firma del contratto.

    Scopri di più
    Area Immobili

    Area Immobili

    I nostri consulenti immobiliari conoscono a fondo il territorio e mettono al centro le tue esigenze. Dalla valutazione dell’immobile alla trattativa finale, ti garantiamo un supporto personalizzato e professionale.

    Scopri di più

    Consigliati

    Immobili Consigliati

    Richiedi dettagli