Vendesi Ragusa

Rif.9794 - Prestigioso Immobile Commerciale in Viale delle Americhe

Rif: 9794
in Vendita

340.000€

Descrizione

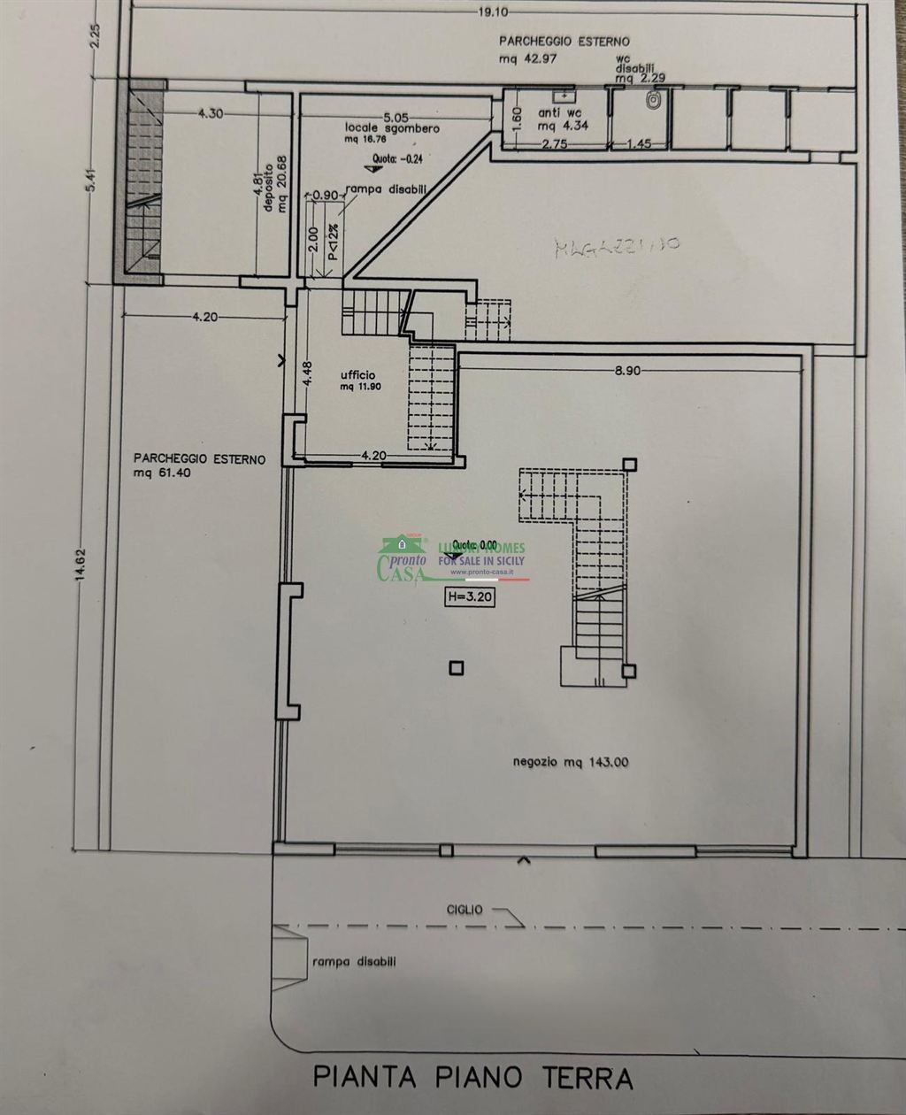
Pronto Casa propone in vendita un ampio locale commerciale di 548 mq totali, situato nel cuore pulsante del Viale delle Americhe.
L'immobile si distingue sia per la sua posizione strategica, sia per la sua totale indipendenza che per l'importante luminosità grazie alle ampie vetrine fronte strada offrendo una visibilità impareggiabile per qualsiasi brand.
La metratura è distribuita in modo funzionale su due livelli commerciali per un totale di mq 380, completanano la funzionalità del cespite ulteriori 168 mq tra ammezzato e deposito.

CARATTERISTICHE PRINCIPALI

Piano terra:
  • Area espositiva
  • Ufficio
  • Magazzino
  • Servizio disabili
  • Servizio
Piano primo:
- Un ampio showroom ideale per esposizioni.

DOTAZIONI E PERTINENZE

  • Parcheggio esterno
  • Ampie vetrine espositive
  • Deposito
  • Rampa disabili
Per maggiori informazioni contattare l'Agenzia 1 di Ragusa allo 0932 257603 oppure visita il nostro sito web.

Scheda tecnica

  • Quartiere: Residenziale
  • Area (mq): 548
  • Locali: 4
  • Bagni: 2
  • Cucina: Non presente
  • Terrazzo: No
  • Balcone: Si
  • Box auto: Posto auto scoperto
  • Giardino condominiale: No
  • Giardino privato: No
  • Riscaldamento: Nessuno
  • Piano: Intero edificio
  • Stato: Occupato Inquilino
  • Stato manutenzione: Ottimo
  • Ascensore: No
  • Classe Energetica:
    D
    A
    B
    C
    D
    E
    F
    G

Video

Agenzia

  • Ragusa

    Pronto Casa Ragusa

    Indirizzo:Via del Faggio, 3 Telefono:0932257603 Email:info@pronto-casa.it
  • Mappa

    Aree Pronto Casa

    Un team di professionisti al tuo fianco

    Area Tecnica

    Area Tecnica

    Dal disbrigo delle pratiche catastali alle certificazioni energetiche, fino alla progettazione e ristrutturazione: il nostro ufficio tecnico MG Project è il partner ideale per chi desidera vendere o acquistare senza complicazioni.

    Scopri di più
    Area Mutui

    Area Mutui

    Grazie alla partnership con Integra Finance, ti affianchiamo nella scelta del mutuo più vantaggioso. Il nostro team dedicato ti segue passo dopo passo, dalla simulazione della rata fino alla firma del contratto.

    Scopri di più
    Area Immobili

    Area Immobili

    I nostri consulenti immobiliari conoscono a fondo il territorio e mettono al centro le tue esigenze. Dalla valutazione dell'immobile alla trattativa finale, ti garantiamo un supporto personalizzato e professionale.

    Scopri di più

    Consigliati

    Immobili Consigliati

    Richiedi dettagli