Vendesi Ragusa

Rif.9806 - Appartamento nuova costruzione zona "Palaminardi"

Rif: 9806
in Vendita

220.000€

Descrizione

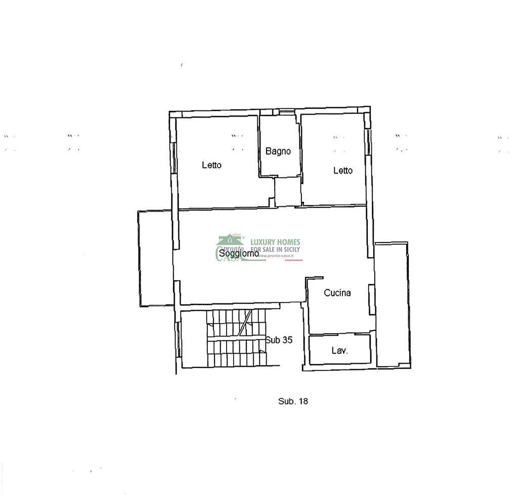
Pronto Casa Group propone in vendita, nei pressi del Pala Minardi, luminoso e nuovo appartamento arredato con rifiniture extra capitolato, di circa 100 mq.
L'immobile si sviluppa al piano primo di uno stabile costruito nel 2022 e costituito da un condominio di solo due famiglie. Lo stabile bifamiliare, privo di ascensore, presenta nel vano scala, il riscaldamento ed il collegamento interno al garage pertinenziale .
CARATTERISTICHE PRINCIPALI:
L’appartamento è così composto:

  • ingresso su un ampia zona living con angolo cucina a vista ed annessa lavanderia/doppio servizio;
  • camera matrimoniale,
- cameretta e servizio principale.

SPAZI ESTERNI

La proprietà è impreziosita da ampi balconi su doppia esposizione con meravigliosa vista aperta.
DOTAZIONI E PERTINENZE:
  • Infissi a taglio termico;
  • serrande elettriche;
  • riscaldamento autonomo a metano con caldaia a condensazione;
  • impianto di allarme;
  • pannelli fotovoltaici per le aree condominiali;
  • solare termico per l'acqua calda sanitaria;
  • garage di circa 38 mq con punto acqua e posto auto nel cortile condominiale;
  • video citofono;
  • arredato;
L'offerta include la cucina compresa di elettrodomestici e l'arredo.
Per maggiori informazioni sull'immobile o per fissare un appuntamento contatta la filiale Pronto Casa Group
  • Point 3 Ragusa, al numero 0932/1885279.
Visita il nostro sito web per scoprire tutti gli annunci simili disponibili in città.

Scheda tecnica

  • Quartiere: Residenziale
  • Area (mq): 95
  • Locali: 4
  • Bagni: 2
  • Camere: 2
  • Cucina: Angolo cottura
  • Terrazzo: Si
  • Balcone: Si
  • Box auto: Doppio
  • Giardino condominiale: No
  • Giardino privato: No
  • Riscaldamento: Autonomo
  • Tipo Riscaldamento: Gas metano
  • Piano:
  • Numero di piani: 2
  • Stato: Occupato Inquilino
  • Stato manutenzione: Nuovo
  • Anno di costruzione: 2022
  • Ascensore: No
  • Classe Energetica:
    B
    A
    B
    C
    D
    E
    F
    G

Agenzia

  • Ragusa

    Pronto Casa Ragusa

    Indirizzo:Via del Faggio, 3 Telefono:0932257603 Email:info@pronto-casa.it
  • Mappa

    Aree Pronto Casa

    Un team di professionisti al tuo fianco

    Area Tecnica

    Area Tecnica

    Dal disbrigo delle pratiche catastali alle certificazioni energetiche, fino alla progettazione e ristrutturazione: il nostro ufficio tecnico MG Project è il partner ideale per chi desidera vendere o acquistare senza complicazioni.

    Scopri di più
    Area Mutui

    Area Mutui

    Grazie alla partnership con Integra Finance, ti affianchiamo nella scelta del mutuo più vantaggioso. Il nostro team dedicato ti segue passo dopo passo, dalla simulazione della rata fino alla firma del contratto.

    Scopri di più
    Area Immobili

    Area Immobili

    I nostri consulenti immobiliari conoscono a fondo il territorio e mettono al centro le tue esigenze. Dalla valutazione dell'immobile alla trattativa finale, ti garantiamo un supporto personalizzato e professionale.

    Scopri di più

    Consigliati

    Immobili Consigliati

    Richiedi dettagli