Vendesi Santa Croce Camerina

STRUTTURA ALBERGHIERA IN VENDITA – KAUKANA, FRONTE MARE

Rif: 2361
in Vendita

2.200.000€

Descrizione

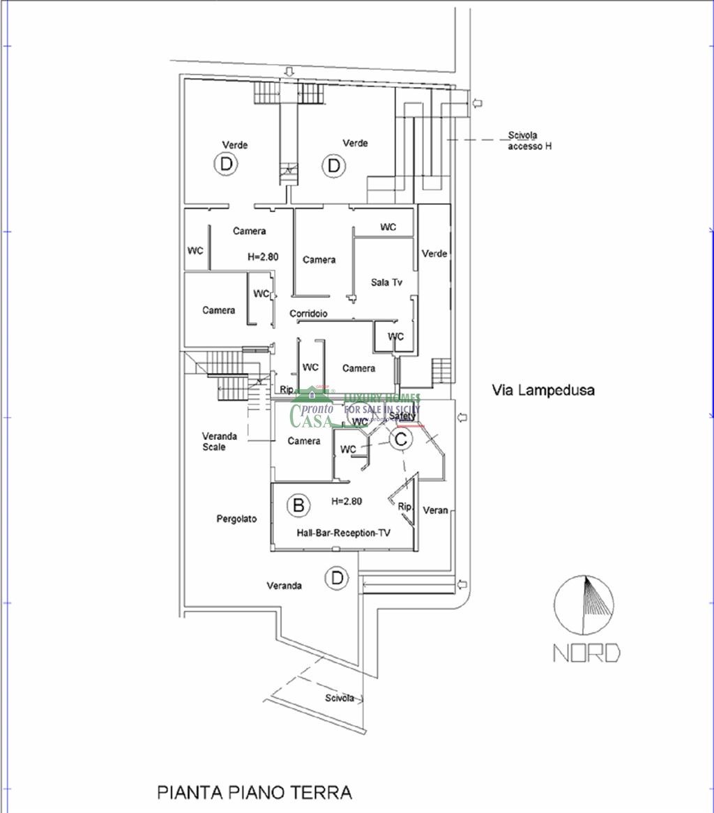
Pronto Casa Group propone in vendita esclusiva una struttura alberghiera fronte mare situata a Kaukana, frazione turistica di Santa Croce Camerina, con accesso diretto alla spiaggia. Una rara opportunità di investimento in una delle zone più apprezzate del litorale ibleo, perfetta per chi desidera avviare o ampliare un'attività ricettiva a pochi passi dal mare.
Costruita nel 2006 e sottoposta a continua manutenzione, la proprietà si presenta in ottime condizioni generali ed è pronta per essere operativa da subito. Possibilità di convertire la struttura in civile abitazione, per avere una casa o più appartamenti sul mare!

CARATTERISTICHE PRINCIPALI

  • Superficie complessiva di circa 600 mq, distribuiti su tre livelli principali più piano cantinato e mansarda
  • 12 camere doppie, tutte dotate di bagno privato e climatizzazione indipendente
  • Piano cantinato di circa 150 mq, attualmente adibito a magazzino
  • Piano mansardato disponibile per ulteriori sviluppi o uso privato

SPAZI ESTERNI

  • Generosi spazi esterni comuni, ideali per momenti di relax all'aperto con vista mare
  • Aree private per le camere al piano terra, perfette per garantire comfort e privacy agli ospiti

DOTAZIONI E SERVIZI

  • Cucina al piano terra attrezzata, completa di forno per pizze, ideale per offrire servizio ristorazione interno o per avviare una pizzeria da asporto
  • Posizione unica, direttamente sulla spiaggia, perfetta per attrarre turismo sia estivo che annuale

PUNTI DI FORZA

  • Struttura moderna e ben tenuta, pronta all'uso
  • Posizione strategica fronte mare, difficile da replicare
  • Ottimo potenziale di redditività per attività ricettiva o combinata con servizio di ristorazione
  • Opportunità di espansione sfruttando gli spazi del piano mansarda

Per maggiori informazioni o per organizzare una visita, contatta la filiale Pronto Casa Group – Agenzia 7 Marina di Ragusa al numero 0932 239865.
Scopri tutte le nostre proposte immobiliari su www.pronto-casa.it.

Scheda tecnica

  • Quartiere: Caucana
  • Area (mq): 600
  • Bagni: 15
  • Camere: 12
  • Terrazzo: Si
  • Balcone: Si
  • Box auto: Quadruplo
  • Giardino condominiale: No
  • Giardino privato: Si
  • Riscaldamento: Autonomo
  • Tipo Riscaldamento: Pompa di calore
  • Piano: Intero edificio
  • Numero di piani: 4
  • Stato: Libero
  • Stato manutenzione: Ottimo
  • Anno di costruzione: 2006
  • Ascensore: No
  • Classe Energetica:
    C
    A
    B
    C
    D
    E
    F
    G

Agenzia

  • Marina di Ragusa

    Pronto Casa Ag.7 Marina di Ragusa

    Indirizzo:Via del Mare, 3 Telefono:0932239865 Email:marinadiragusa@pronto-casa.it
  • Mappa

    Aree Pronto Casa

    Un team di professionisti al tuo fianco

    Area Tecnica

    Area Tecnica

    Dal disbrigo delle pratiche catastali alle certificazioni energetiche, fino alla progettazione e ristrutturazione: il nostro ufficio tecnico MG Project è il partner ideale per chi desidera vendere o acquistare senza complicazioni.

    Scopri di più
    Area Mutui

    Area Mutui

    Grazie alla partnership con Integra Finance, ti affianchiamo nella scelta del mutuo più vantaggioso. Il nostro team dedicato ti segue passo dopo passo, dalla simulazione della rata fino alla firma del contratto.

    Scopri di più
    Area Immobili

    Area Immobili

    I nostri consulenti immobiliari conoscono a fondo il territorio e mettono al centro le tue esigenze. Dalla valutazione dell’immobile alla trattativa finale, ti garantiamo un supporto personalizzato e professionale.

    Scopri di più

    Consigliati

    Immobili Consigliati

    Richiedi dettagli